Panoramica
- Aggiornato il:
- Novembre 27, 2025
- 3 Camere
- 3 Bagni
- 355 m2
- Anno 2005
A pochi minuti dal Lago di Garda, immersa in un contesto rurale raffinato e armonioso, sorge questa splendida villa in stile cascina, circondata da un verde paradisiaco. La proprietà si estende su circa 20.000 mq di vigneti e uliveti biologici, che abbracciano l’intero perimetro, regalando un’atmosfera di assoluta tranquillità.
Un suggestivo viale fiancheggiato da filari di vigne conduce alla dimora, una residenza di grande metratura disposta su due livelli, con ingresso da una elegante scala esterna. Attraverso un maestoso portale in legno si accede a un salone imponente, impreziosito da un raffinato camino. La cucina abitabile, luminosa e accogliente, si apre su un ampio porticato coperto, offrendo una vista mozzafiato sulle Prealpi. A completare il piano vi sono uno studio, un pratico ripostiglio e un bagno di servizio.
Una scenografica scala in marmo rosa Perlino, arricchita da un corrimano in ferro battuto a mano, conduce al generoso ballatoio della zona notte, che introduce a tre eleganti camere da letto, tra cui una con cabina armadio. Un ampio e raffinato bagno padronale completa la zona notte, garantendo comfort e funzionalità.
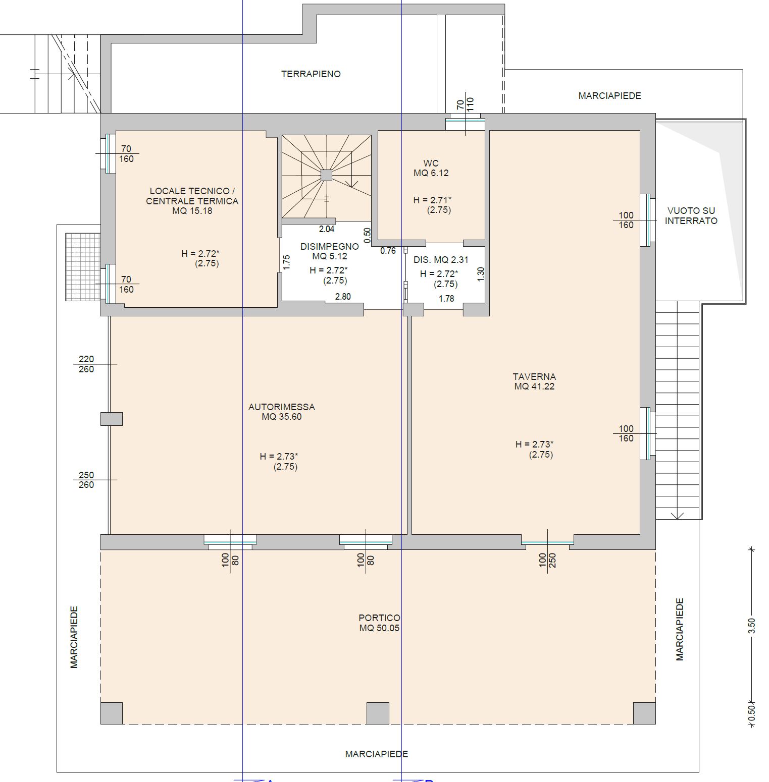
Al piano terra, la proprietà dispone di due spaziosi box auto, una grande taverna con camino, un bagno lavanderia e una cantina, ideali per soddisfare ogni esigenza abitativa. Le dotazioni moderne comprendono riscaldamento a pavimento, pompa di calore con impianto fotovoltaico, aria condizionata, sistema di allarme interno ed esterno, e addolcitore, offrendo un perfetto equilibrio tra eleganza e innovazione tecnologica.
Questa villa di prestigio rappresenta la soluzione ideale per chi desidera indipendenza totale, privacy assoluta e un ambiente esclusivo, immerso nella bellezza della natura.
A+
A
B
C
D
E
F
G
H





















































